ID CP2670859

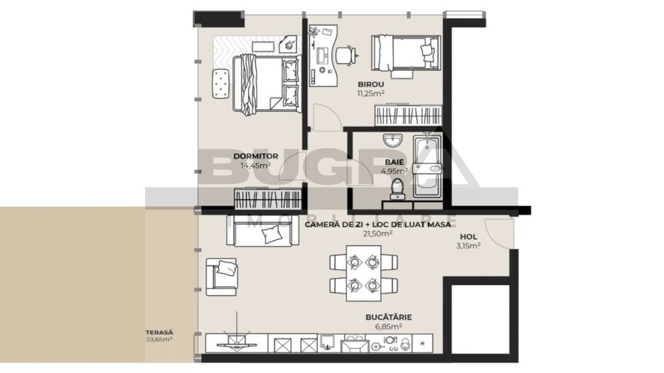
Apartament 3 camere, 62 mp, terasa 24 mp, zona autogara

ID CP2670859

160,989 € + 21% TVA

Apartament cu 3 camere de vânzare
Dambul Rotund, Cluj-Napoca
62 mp
2025

Cauti un apartament in cel mai nou ansamblu rezidential din Cluj-Napoca? Nu rata ultimele apartamente!

Bugra Imobiliare va ofera spre vanzare ultimele apartamente disponibile, 1- 2- 3 camere cu suprafete utile intre 44 si 96 mp. Acestea se vand la stadiu de semifinat (pereți tencuiți și gletuiți cu prima mână, ușă intrare, încălzire în pardoseală, utilitățiile trase la poziție) sau finisate .

Construit conform standardului NZEB, energia termică necasară încălzirii spațiilor din locuința și prepararea apei calde menajere este asigurată de pompe de căldură aer-apă împreună cu centrală pe gaz și panouri fotovoltaice.

Termen de finalizare-> Primavara 2028

12.000 mp de spații comerciale situate pe 2 nivele, parcări subterane pe 2 nivele, parcări destinate vizitatorilor, locuri de parcare pentru taxi, o stație Cluj Bike, loc de joacă pentru copii, zonă de relaxare în interiorul ansamblului si 3 minute pana in centrul orasului la preturi inca accesibile. Se poate achizitiona un loc de parcare subterana la pretul de 12.000 euro+TVA.

La pretul afisat, se adauga TVA.

Va asteptam cu drag la vizionari!

Citește mai mult

  • Tip apartament
    Apartament
  • Compartimentare
    Semidecomandat
  • Număr camere
    3
  • Dormitoare
    2
  • Număr bucătării
    1
  • Număr băi
    1
  • Etaj
    2
  • Suprafață utilă
    62 mp
  • Suprafață terasă
    24 mp
  • Disponibilitate
    2028
  • Orientare
    Nord-Vest
  • Confort
    1
  • Stare interior
    Semifinisat
  • Număr terase
    1
  • Imobil
    Bloc de apart.
  • Stadiu construcție
    În construcție
  • An construcție
    2025
  • Construcție nouă
    Da
  • Număr etaje clădire
    10

Facilități

Apă
Canalizare
CATV
Curent
Gaz
Iluminat stradal
Încălzire prin pardoseală
Internet
Mijloace de transport în comun
Străzi asfaltate
Telefon
Anamaria Buda - BUGRA IMOBILIARE
Anamaria Buda
Consultant Imobiliar

0755965493


Solicită chiar acum o vizionare
Telefon
Sună acum Solicită vizionare
Necesare:

Site-ul nu poate funcționa corect fără aceste cookie-uri. Vezi cookie-urile

Statistică:

Strângem statistici anonime despre voi, vizitatorii unici, pentru a vă îmbunătăți experiența dumneavoastră. Vezi cookie-urile

Marketing:

Pentru a ne promova mai eficient serviciile noastre, folosim cookies pentru a vă identifica și a vă oferi proprietăți și servicii personalizate. Vezi cookie-urile

Acest site folosește cookies, află detalii. Alege ce tipuri de cookies dorești să permitem: